Loading...
Gia chủ Đà Nẵng xây 2 cầu thang để nhà ống 25 m sáng trưng

Gia chủ Đà Nẵng xây 2 cầu thang để nhà ống 25 m sáng trưng

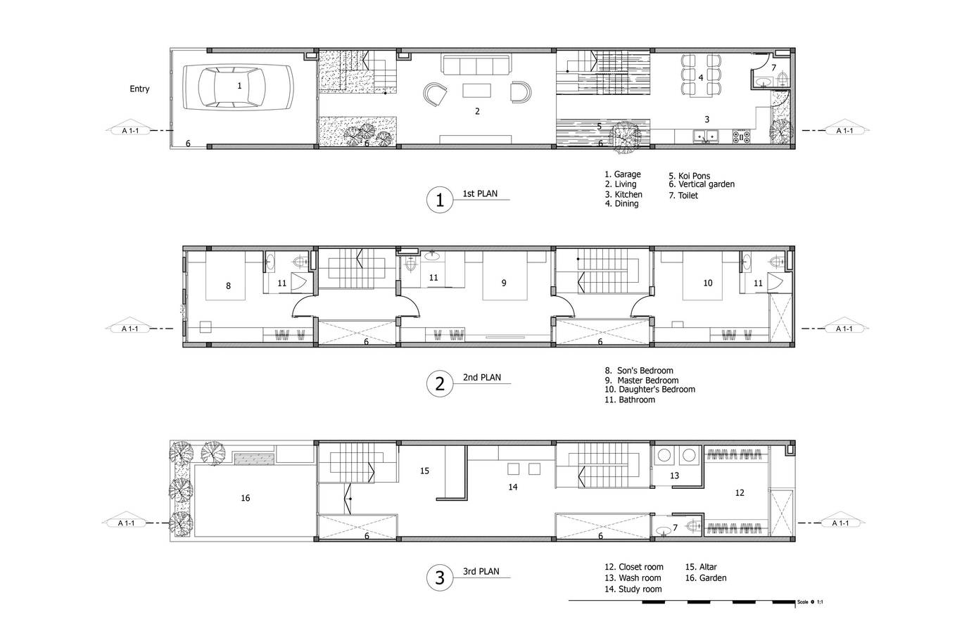
- Công trình ba tầng, nằm trong một con ngõ hẹp, nơi các ngôi nhà san sát nhau ở thành phố Đà Nẵng vừa hoàn thành năm 2018. Đây là tổ ấm của một gia đình nhỏ có bốn thành viên.

- Miếng đất xây nhà có chiều ngang chỉ 4 m, chiều sâu tới hơn 25 m. Kiến trúc sư Tô Hữu Dũng (85 Design) nghĩ ngay đến giải pháp sử dụng hai luồng giao thông và cầu thang riêng biệt, kết hợp với giếng trời và cây xanh, để đón nắng và gió vào nhà, tạo cho ngôi nhà sáng và thoáng hết sức có thể.

- Khu vực đặt cầu thang đồng thời cũng là giếng trời. Những bức tường bên cạnh cầu thang được biến thành khu vườn thẳng đứng, thông suốt từ tầng một lên mái.

- Mỗi khu vườn đứng là một dàn khung sắt, liên kết những chậu cây nhỏ và có một hệ thống tưới nước tự động. Dù ở không gian nào trong nhà, gia chủ đều có thể cảm nhận được sự xanh mát do các khu vườn này mang lại.

- Kiến trúc sư lắp kính cho mái nhà đồng thời mở nhiều cửa sổ ở khu vực này, tất cả đều nhằm tạo ra sự thông thoáng cho không gian trong nhà.

- Hai cầu thang cũng giúp giao thông không bị chồng chéo, tránh trường hợp không gian riêng tư bị sử dụng làm lối để đi từ phòng nọ sang phòng kia.

- Garage để xe ôtô được đặt ngay phía ngoài cùng tầng một và được ngăn cách với các không gian khác bởi hệ thống cửa trượt.

- Phòng khách nằm ở trung tâm tầng trệt, khá rộng rãi và thoải mái. 

- Từ phòng khách, đi vào sâu nhà sẽ gặp một hồ cá koi nhỏ. Cuối nhà là phòng ăn và bếp.

- Tầng hai là không gian của ba phòng ngủ, phòng ngủ của bố mẹ ở giữa, hai phòng ngủ của hai con ở hai bên. Các phòng ngủ được kết nối với nhau bằng những hành lang cầu. Cách bố trí này giúp bố mẹ dễ dàng kiểm soát được việc sinh hoạt và học tập của hai con.

 

- Việc bố trí hai cầu thang thật sự phát huy hiệu quả trong quá trình sử dụng, giúp sự kết nối các không gian riêng và chung trở nên đơn giản và  hiệu quả.

- Tầng ba gồm phòng thờ, không gian đọc sách kết hợp làm việc, phòng giặt và phòng thay đồ.

- Ngoài ra, tầng ba còn có thêm vườn cây xanh và sân chơi dành cho gia đình vào những ngày đẹp trời hay cho những buổi tối lãng mạn của riêng bố mẹ.

  • Chia sẻ qua viber bài: Gia chủ Đà Nẵng xây 2 cầu thang để nhà ống 25 m sáng trưng
  • Chia sẻ qua reddit bài:Gia chủ Đà Nẵng xây 2 cầu thang để nhà ống 25 m sáng trưng

Tin tức liên quan